Chalk Farm Road, NW1

£1,250 pcm
  • Ref: ALP220123
  • Bathrooms: 1
  • Reception Rooms: 1
  • Available: 01/05/2026
  • Make Enquiry
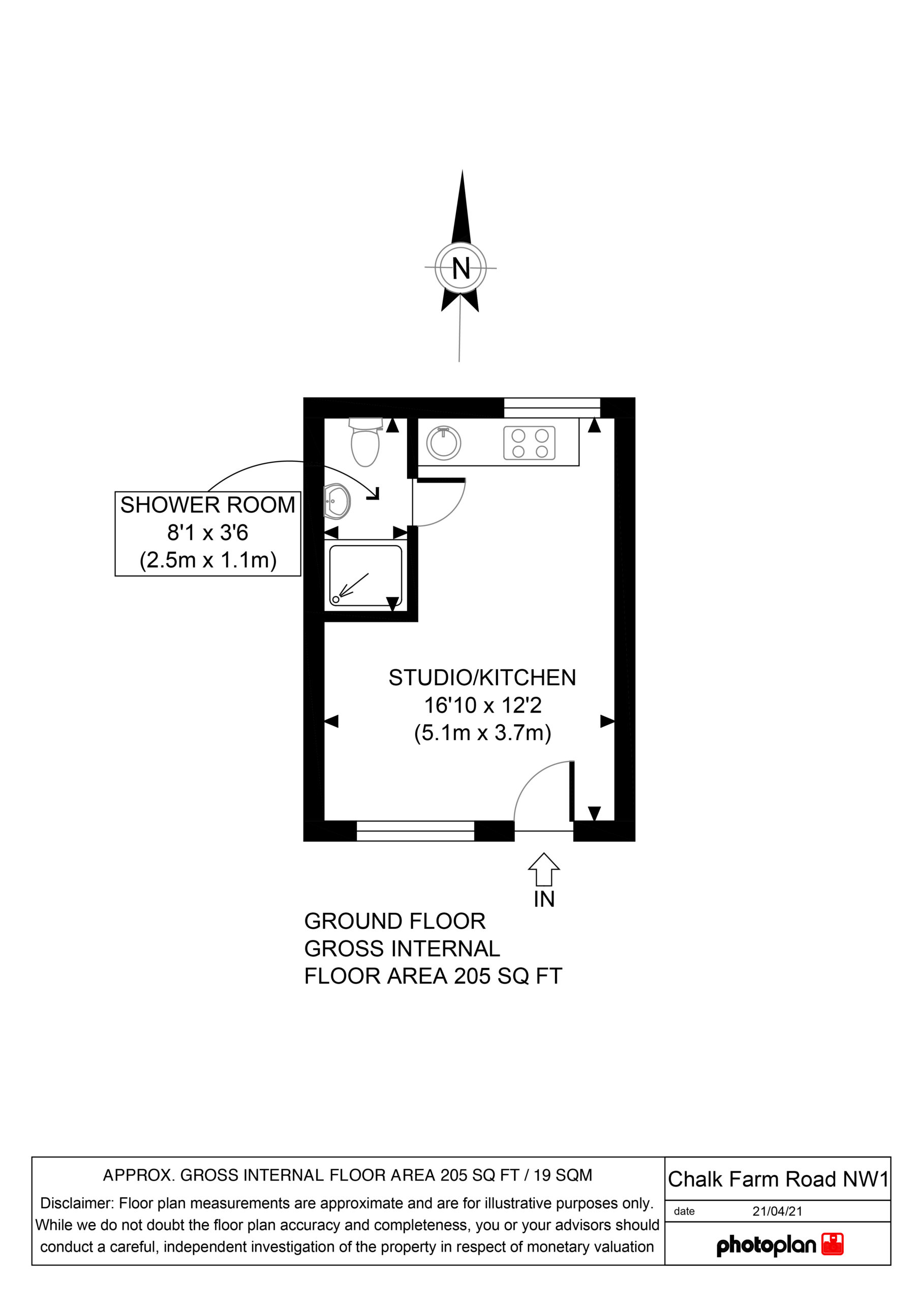
  • Floorplan

Property Summary

Element Properties & Co is proud to present this lovely ground floor studio apartment situated in a fantastic location only a 5 minute walk from Chalk Farm Station.

With wooden flooring throughout the apartment comprises a spacious living space, modern kitchenette and luxury shower room.

While there is no washing machine in the flat itself the development has a laundry room for all tenants to use.

Gas, water, electricity and heating fixed at an additional £150 per month.

Available 1st May.

Furnished.